tel:
+8613921964455Email:
info@sunswell.comSep 14, 2022
It has been more than 2,600 years since the phenomenon of electrostatic attraction was discovered, and the basic electrostatic theory has become the theoretical basis of modern electrostatic dust removal technology, less than a hundred years ago.
In recent decades, due to economic development and technological progress, electrostatic precipitator technology has been more and more widely used in various industrial fields. With the development of PET bottle packaging machinery, the market competition has become increasingly fierce. In order to reduce production costs and improve product quality and production efficiency, the combined machine of blowing, filling and capping is more and more popular with beverage manufacturers.
As the blowing-filling-capping eliminates the process of rinsing the bottle, the production efficiency is improved, and the requirements for the cleanliness of the preform are also increased. However, the preform will generate static electricity and adhere to some dust and debris during the injection molding and transportation process, the traditional process is to use sterile water or sterilized water to rinse the preform, which has low efficiency and high-water consumption.
The electrostatic dust removal technology is used to eliminate static electricity in the inner cavity of the preform, and then the dust and debris adsorbed on the inner wall of the embryo tube are collected by a vacuum cleaner, with high efficiency and low gas consumption.
After the preforms are injection-molded, they are stacked in the preform baskets in large quantities and disorderly. When in use, the forklift puts the preform baskets into the dumper, and the dumper pours the preforms in the preform baskets into the elevator. The embryos are lifted to a certain height by the elevator and then sent to the embryo sorting machine. The embryo sorting machine arranges the preforms into an orderly arrangement and sends them into the blowing, filling and rotating equipment one by one.
In this process, there is a lot of extrusion friction and separation between the preforms, which is easy to generate static electricity, and the worn-out preform debris and dust in the air are also easily absorbed in the inner cavity of the preform. Due to the electrostatic adsorption of dust and debris on the surface of the preform, which does not meet the cleanliness requirements of beverage packaging, a preform dust removal system is required.
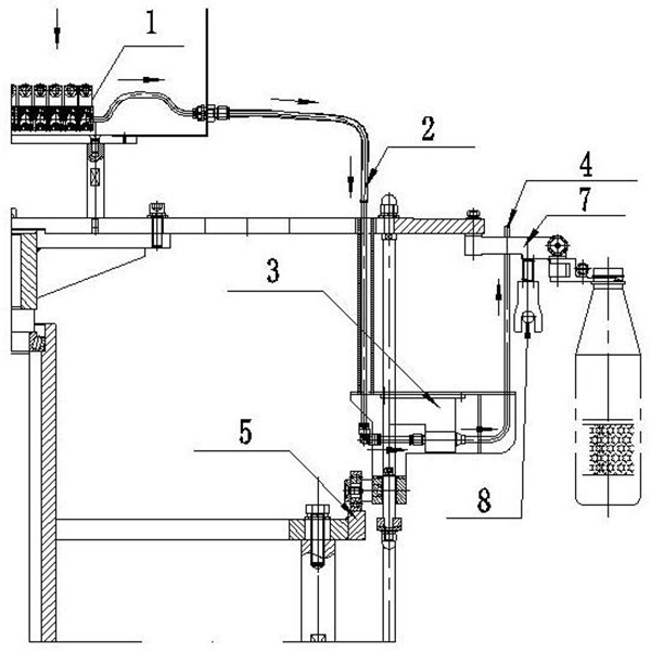
The principle of the dust collector: the input 24V DC voltage is boosted to 2kV ~ 15kV by the pulse DC controller, the positive voltage and negative voltage generated are respectively connected to the positive and negative electrodes of the ion nozzle through the shunt, and the ion nozzle is connected to the clean. The compressed air, the positive and negative electrodes respectively ionize the compressed air into ion wind with positive and negative ions, the nozzle external to the ion nozzle is inserted into the bottle embryo and sprays the ion wind, if the dust on the surface of the bottle embryo is positively charged, the negative ions in the ion flow and neutralization, if the dust on the surface of the preform is negatively charged, the positive charge in the ion flow is neutralized. The electrostatic dust is eliminated and the adsorption force is lost. The compressed air blows it out of the preform, and then it is sucked out and collected by the vacuum cleaner, and the preform dust removal process is completed.
Operation mode: Most of the process units (bottle blowing, filling, capping, etc.) and transfer units for bottles and preforms on the blowing-filling-capping equipment are rotary designs, and the preform dust removal is designed to be rotary, which can be directly integrated and installed. Before the heating unit, the preform is transported by the star wheel. After the preform is dedusted, it is transferred to the next star wheel, and then enters the heating unit, which is seamlessly connected with the blowing, filling and capping equipment. The blow molding machine is supplied directly without additional motor drive. There is a one-to-one relationship between the dust removal nozzle and the preform. After the preform enters the dust removal star wheel, the external nozzle of the ion nozzle is inserted into the preform and sprays ionized air, which ensures sufficient static neutralization and cleaning time.
Experiment verification: the air pressure is 0.35MP, the equipment speed is 36000BPH, 50 preforms for the experiment are taken, and hair strands, film, paper scraps, preform debris and support ring debris are placed in sequence, and the foreign matter is completely removed.
Testing instruction:
a. For hair, cut the hair into 2, 3, and 5cm lengths, and place 3 hairs of different lengths into each bottle embryo respectively;
b. Film (plastic film), cut the film to 1, 2, and 3 cm in length and about 1 cm in width, and put 3 films of different sizes into each preform;
c. Paper scraps, cut a piece of white paper into 1, 2, 3cm long and 1cm wide pieces of white paper, and put 3 pieces of paper scraps of different specifications into each bottle embryo;
d. Bottle preform debris, take the bottle preform debris with a length of more than 1mm, and put several (more than 10) debris into each bottle preform;
e. Support ring fragments, take the preform support ring fragments with a length of more than 1mm, and put several (more than 10) fragments into each preform.
Final test results: The common foreign objects in the preform are the preform debris and the support ring debris. After the preform electrostatic precipitator is processed, the removal rate can reach 100%. For the manually added foreign objects, except for the film, the removal rate is also high.
It can reach 100%, and the film removal rate can reach 96%, which proves that the equipment can fully meet the requirements of the blowing-filling-capping equipment for the cleanliness of the preform.

October 26, 2016
The Most Successful Engineering ContractorMar 31, 2026
Low-Level Gantry PalletizerJan 15, 2026
The 8th Bottling Line Ordered by RauanDec 11, 2025
Sunswell participated in 2025 Andina PackNov 26, 2025
Vizit and Sunswell Collaborate Again